Վաճառքի 3 սենյականոց բնակարան Գրիբոյեդովի փողոց, Արաբկիր, Երևան
Երևան, Արաբկիր, Գրիբոյեդովի փողոց$ 190,000
$ 2,262 / ք․մ․
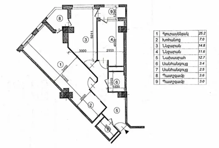
3 սենյակներ
84 ք.մ.
2 լոգասենյակներ
13/16 հարկ
Մոնոլիտ
Նորակառույց
- Արարատ ռիելթի
- +374 44 205090
- +374 77 885821
Վերջին փոփոխություն:20.03.2026
Ինֆորմացիա
Բնակարանը գտնվում է նորակառույց Կոմիտաս պարկ թաղամասում,արևկող։. ․
Street view
Տարածել:
- Արարատ ռիելթի
- +374 44 205090
- +374 77 885821

























































